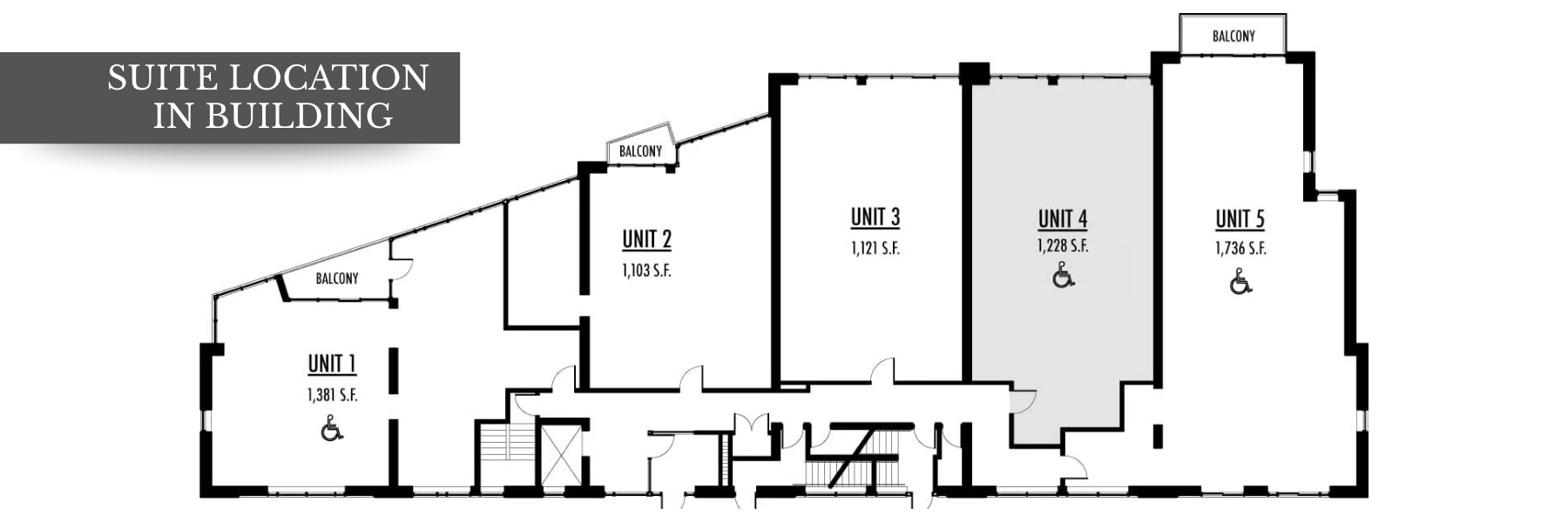
The Portage Flyer | Suite 204
A thoughtfully designed second-floor residence with accessible features and eastern river views, well suited to those seeking comfort, flexibility, and a bright waterfront setting.
Residence Overview
Suite Highlights
Easterly exposure along the Muskoka River with views toward Lions Lookout
French balconies off the living room and primary bedroom
Accessible layout designed for ease and everyday comfort
8.8-foot ceilings enhancing the openness of the kitchen, dining, and living areas
Spacious kitchen centered around a generous island
Additional storage closet at the entrance for practical organization
Optional fireplace adding warmth and character to the living and dining space
Designed & Finished Your Way
Suite 204 offers a refined architectural foundation shaped by natural light, thoughtful proportions, and accessible design. The well-balanced layout provides comfort and flexibility, creating an ideal backdrop for interiors tailored to your individual style and daily routines.
From kitchen finishes and flooring to fixtures and details, this residence provides the opportunity to create a home that reflects both personal style and practical comfort.
Design Inspiration
Images and virtual tours are provided for inspiration. Finishes and layouts may vary by suite.
If desired, professional interior design support is available to assist with finish and selection decisions.

